Dos décadas de experiencia en la industria, centrándose en la innovación tecnológica de seguridad de ascensores Shanghai Liftech Elevator Accessories Co., Ltd. participará en la Exposición m...
READ MORE











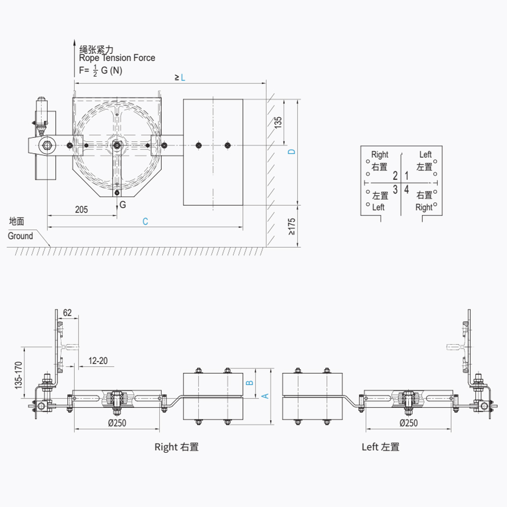
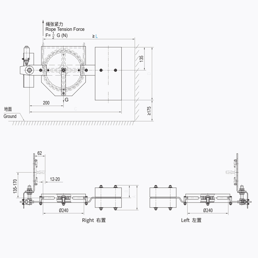
El dispositivo tensor de ascensor LTD02 adopta una estructura de brazo oscilante y realiza el tensado automático del cable de acero a través de un bloque de contrapeso. Tiene las ventajas de una estructura compacta, fácil operación y cómodo mantenimiento. El tensor de brazo oscilante LTD02 también presenta buena adaptabilidad y capacidad de ajuste. Su contrapeso se puede ajustar para adaptarse a las necesidades específicas del ascensor y para adaptarse a diferentes tipos de rieles guía y especificaciones de cables metálicos.
Dos décadas de experiencia en la industria, centrándose en la innovación tecnológica de seguridad de ascensores Shanghai Liftech Elevator Accessories Co., Ltd. participará en la Exposición m...
READ MOREFreno de cuerda de ascensor Los sistemas representan mecanismos de seguridad críticos en el transporte vertical, evitando el descenso del vehículo en caso de falla de la cuerda o condi...
READ MOREElevador de material de seguridad Los sistemas son la última línea de defensa mecánica en una cadena de seguridad de transporte vertical. Cuando todos los demás sistemas de protección ...
READ MOREComprender la tecnología central el Gobernador de sobrevelocidad de precisión es el centinela de la seguridad de los ascensores. Es un dispositivo mecánico de control de velocidad ...
READ MOREEn la industria del transporte vertical, la confiabilidad de componentes de seguridad del ascensor no es negociable. Estos sistemas de ingeniería, que van desde reguladores de velocid...
READ MOREEn la sofisticada arquitectura del transporte vertical moderno, la seguridad no es simplemente una característica sino un riguroso requisito de ingeniería. el Tampón de aceite de ascensor ...
READ MOREComprensión de los sistemas de ascensores con equipo de seguridad Elevador de equipo de seguridad Los sistemas se encuentran entre los componentes mecánicos de seguridad más crítico...
READ MOREEn la industria del transporte vertical, la seguridad sigue siendo la principal preocupación para los ingenieros, arquitectos y administradores de propiedades. Entre la gran cantidad de componentes...
READ MORELa integridad de cualquier sistema de transporte vertical depende de un pacto de seguridad silencioso y no negociable. Esta seguridad no es un concepto abstracto sino el funcionamiento preciso y co...
READ MOREEn la ingeniería de transporte vertical, el Equipo de seguridad para ascensores Sirve como el mecanismo crítico final de seguridad contra fallas mecánicas. Cuando se detecta una condi...
READ MORELas paradas de emergencia representan la condición operativa más extrema y crítica para la seguridad en un sistema de ascensor. Durante estos eventos, se deben absorber grandes cantidades de energí...
READ MORERealizar inspecciones o mantenimiento de sistemas de ascensores implica navegar por algunos de los entornos más peligrosos del entorno construido. El hueco del ascensor y el foso están clasificados...
READ MORE